MEDVEDKOVO

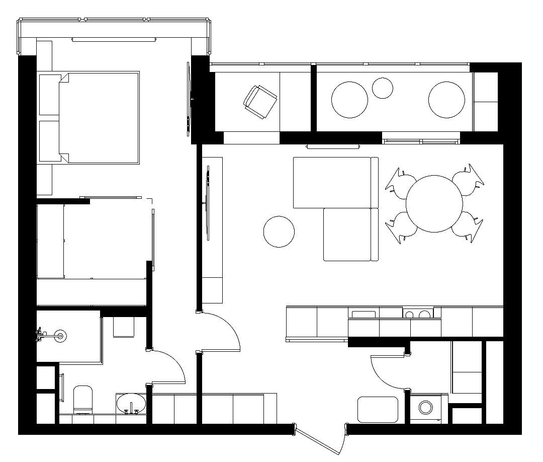
Площадь проекта: 57 кв. м
Локация: г. Москва
Заказчиками являются пара 30−35 лет. Основные пожелания:" Хотим современное, светлое и минималистичное пространство, но с интересными элементами."



В данном проекте стены и потолок залиты одним цветом, балкон разделили на 2 зоны, одна из которых рабочая.

Сделали часть кухни парящей, как интересный акцент в дизайне.


КВАРТИРА В СТИЛЕ МИНИМАЛИЗМА
КВАРТИРЫ
ПЛАНИРОВКА